02064-9919877 info@firsthome.immobilien

Objektdarstellung

Gepflegte Wohnung in Mülheim für 1 oder 2 Personen!

externe Objnr 4123gre
Status Archiviert
Betreuer 33
Nutzungsart Wohnen
Vermarktungsart Miete
Objektart Wohnung
Objekttyp Etagenwohnung
PLZ 45475
Ort Mülheim an der Ruhr
Land Deutschland
Regionaler Zusatz Dümpten
Etage 2. Stock
Wohnfläche 80 m²
Anzahl Zimmer 3,5
Anzahl Schlafzimmer 1
Anzahl Badezimmer 1
Befeuerung Öl
Heizungsart Zentralheizung
Balkon Ja
Ausrichtung Balkon/Terrasse Süd
Küche Einbauküche
Wasch/Trockenraum Ja
externe Objnr 4123gre Status Archiviert
Betreuer 33 Nutzungsart Wohnen
Vermarktungsart Miete Objektart Wohnung
Objekttyp Etagenwohnung PLZ 45475
Ort Mülheim an der Ruhr Land Deutschland
Regionaler Zusatz Dümpten Etage 2. Stock
Wohnfläche 80 m² Anzahl Zimmer 3,5
Anzahl Schlafzimmer 1 Anzahl Badezimmer 1
Befeuerung Öl Heizungsart Zentralheizung
Balkon Ja Ausrichtung Balkon/Terrasse Süd
Küche Einbauküche Wasch/Trockenraum Ja
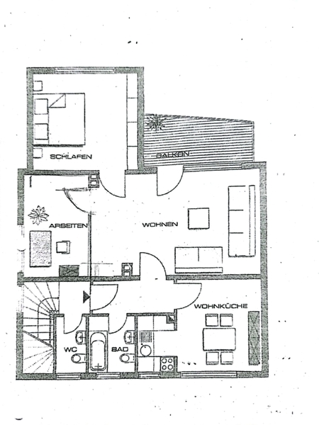
Objektbeschreibung: In diesem freistehenden Zweifamilienhaus in Mülheim an der Ruhr erwartet Sie im ersten Obergeschoss auf rund 80qm Wohnfläche eine 3,5 Zimmer Wohnung.

Durch das gepflegte Treppenhaus erreichen Sie Ihr neues Zuhause im Obergeschoss.
In der Wohnung angekommen, betreten Sie als erstes den Flur. Von hier aus gelangen Sie in das Wohnzimmer, den Essbereich mit integrierter Küche und das Badezimmer.

Das Tageslichtbadezimmer verfügt über eine Badewanne und lädt zu entspannten Wellnessabenden in den eigenen vier Wänden ein.

Neben dem Badezimmer liegt das Esszimmer. Platz genug, um die Küche auszubauen oder mit Ihren Liebsten ein "perfektes Dinner" zu genießen.

Das Herzstück der Wohnung bildet das großzügige Wohnzimmer mit Zugang auf den Balkon. Lassen Sie sich nach einem langen Tag auf Ihr Sofa fallen und brechen Sie aus dem stressigen Alltag aus. Dafür eignet sich ebenfalls bestens der Süd-Westbalkon.

In dem zur Rückseite ausgerichteten ruhigen Schlafzimmer finden Bett und Schrank ihren Platz. Ein kleines Arbeitszimmer bietet Platz für den Homeoffice Bereich.

Zusätzlich steht Ihnen ein Wasch- und Trockenraum, sowie ein separater Vorratskeller zur Verfügung.

Öffentliche Stellplätze sind vor der Immobilie ausreichend vorhanden.

 
Energieausweis
Art: Verbrauchsausweis
Gültig bis: 02.04.2029
Endenergieverbrauch: 151.00 kWh/(m²*a)
Baujahr lt. Energieausweis: 1959
Wesentlicher Energieträger: Öl

Lage: Diese 80qm große Wohnung befindet sich im ersten OG eines freistehenden Zweifamilienhauses im Mülheimer Stadtteil Dümpten.

Das nahegelgene Waldgebiet Wittkamp lädt zu langen Spaziergängen ein. Zusätzlich bietet die Umgebung mit Sportvereinen ein vielfältiges Freizeitangebot.

Zwei Supermärkte sind fußläufig zu erreichen. Ärzte, Apotheken und Schulen befinden sich in unmittelbarer Nähe zum Objekt.

Durch die Anbindung an die A40 sind Sie auch mit den umliegenden Städten bestens vernetzt.
Ausstattung: - Einbauküche
- Einbauschrank aus Glas
- Tageslichtbadezimmer mit Wanne
- Südwestbalkon
- Waschküche und Trockenraum
- Vorratskeller
Sonstiges: Hier finden Sie unsere Datenschutzerklärung für alle Anfragen von Immobilienscout24:
https://www.firsthome.immobilien/dse-immoscout.xhtml

Hier finden Sie unsere Datenschutzerklärung für alle Anfragen von ebay Kleinanzeigen:
https://www.firsthome.immobilien/dse-ebaykleinanzeigen.xhtml

Hier geht es zur Datenschutzerklärung:
https://www.firsthome.immobilien/datenschutz.xhtml

Alle unsere Angebote finden Sie unter:
www.firsthome.immobilien

Auch bei Facebook sind wir aktiv. Unsere offizielle Facebookseite finden Sie unter: https://www.facebook.com/firsthomegmbh/

Wir haben bei Facebook sogar eine Gruppe für aktuelle Immobilienangebote. Hier stellen wir alle Immobilien ein, bevor sie auf die großen Immobilienportale gehen. Werden Sie Mitglied dieser Gruppe und erhalten Sie unsere Immobilienangebote vor allen anderen:
https://www.facebook.com/groups/firsthomeimmobilienangebote

Instagram: https://www.instagram.com/firsthomegmbh/

Google+: https://plus.google.com/u/0/b/105194235584855569163/+FirstHomeGmbHDuisburg

Xing: https://www.xing.com/xbp/pages/first-home-gmbh

Zurück zur vorherigen Seite

Ihr schneller Kontakt zu uns

info@firsthome.immobilien
Tel.: 02064-9919877

Immobiliensuche

Aktuelle Informationen

 

First Home GmbH